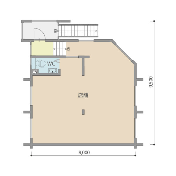
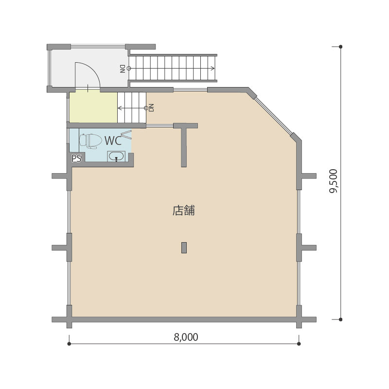
CS瀬之口

家賃121,000
1644

201号 空宮崎県延岡市瀬之口町1丁目2-6

ポイント 飲食店や事務所にオススメのオシャレな建物です♪ 駐車場もあります!(^^)! 延岡市で賃貸物件・テナントをお探しなら、五ヶ瀬不動産へお問い合わせください!!
前のページへ戻る
page-top